
Żuraw typu HD typu European Hoist Electric jednodźwigarowy
Żuraw suwnicy jednodźwigarowej europejskiej to kompaktowe maszyny dźwigowe zaprojektowane i produkowane w ścisłej zgodności z normami FEM i DIN, które dzięki zaawansowanej technologii i pięknemu wzornictwu. Podzielony na typ ogólny i typ zawieszenia, obsługujący standardową europejską dźwignię elektryczną, odpowiedni do obsługi warsztatu i magazynu, dużych części do precyzyjnego montażu i innych miejsc.
Żuraw typu HD typu European Hoist Electric jednodźwigarowy
Krótki opis:
Żuraw suwnicy jednodźwigarowej europejskiej to kompaktowe maszyny dźwigowe zaprojektowane i produkowane w ścisłej zgodności z normami FEM i DIN, które dzięki zaawansowanej technologii i pięknemu wzornictwu. Podzielony na typ ogólny i typ zawieszenia, obsługujący standardową europejską dźwignię elektryczną, odpowiedni do obsługi warsztatu i magazynu, dużych części do precyzyjnego montażu i innych miejsc.
Mógłby być szeroko stosowany w produkcji maszyn, metalurgii, petrochemii, petryfikacji, portach, kolejnictwie, lotnictwie cywilnym, przemyśle spożywczym, produkcji papieru, budownictwie, warsztatach przemysłu elektronicznego, magazynach i innych sytuacjach związanych z transportem materiałów, w szczególności. stosowane do przenoszenia materiałów, które wymagają precyzyjnego pozycjonowania, duża dokładność montażu komponentów.
Szczegółowe zdjęcia:
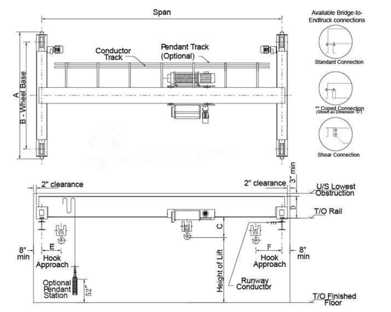
Rysunek szkicu:
Parametry techniczne:
Przęsło | m | 7.5 | 10.5 | 13.5 | 16,5 | 19,5 | 22,5 | 25,5 |
Pojemność | t | 1 ~ 12,5t | ||||||
Waga całkowita | kg | 1781 ~ 12086 | ||||||
Waga wózka | kg | 405 ~ 740 | ||||||
Max. Obciążenie koła | kn | 13,5 ~ 90,94 | ||||||
Szyna podróżna | P24 ~ P43 | |||||||
Prędkość podnoszenia | m / min | 0,8 / 5 | 0,8 / 5 | 0,8 / 5 | 0,8 / 5 | 0,8 / 5 | 0,8 / 5 | 0,8 / 5 |
Wysokość podnoszenia | m | ≥ 6 | ≥ 6 | ≥ 6 | ≥ 6 | ≥ 6 | ≥ 6 | ≥ 6 |
Całkowita moc silnika | kw | 4.31 | 4.31 | 4.31 | 4.31 | 4,67 | 4,67 | 4,67 |
Szybkość dźwigu | m / min | 3-30 | 3-30 | 3-30 | 3-30 | 3-30 | 3-30 | 3-30 |
Prędkość wózka | m / min | 2-20 | 2-20 | 2-20 | 2-20 | 2-20 | 2-20 | 2-20 |
Praca | M5 / A5 |